3 Bedroom Semi-Detached For Sale
Highland Croft, Steyning, BN44 3RF
£525,000
Sold STC
  • Built in the 1930s by Frank Duke Ltd
  • Light and spacious three bedroom house
  • Open-plan living space
  • Fine timber staircase
  • Conservatory
  • Modern bathroom
  • South-facing rear garden
  • Gas-fired central heating
  • Double-glazed windows
  • No ongoing chain

Summary

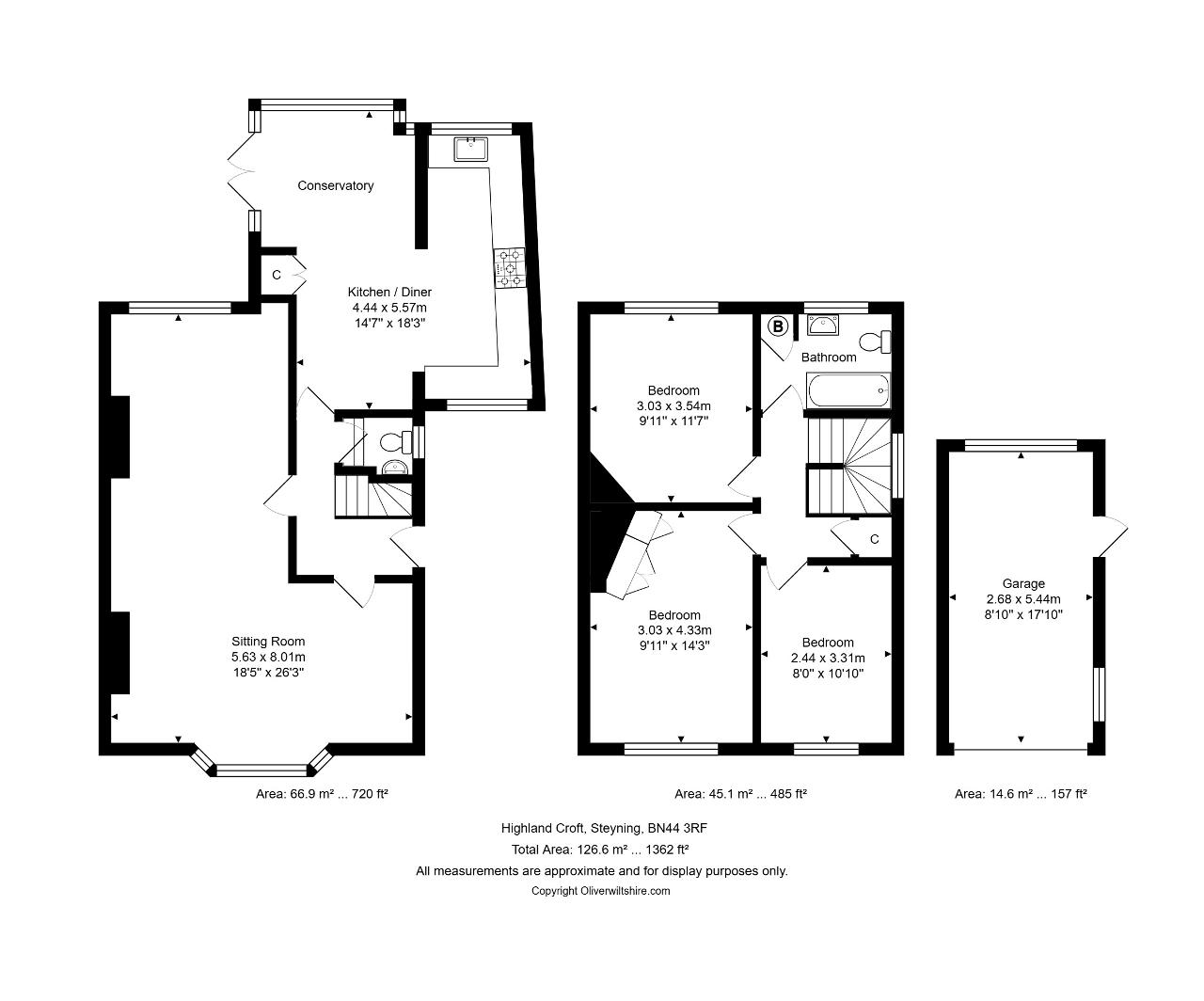
An older-style semi-detached house built in the 1930s by Frank Duke Ltd of Steyning and providing good family accommodation with a secure south-facing rear garden. The elevations are rendered in white with replacement double-glazed windows under an interlocking clay-tiled roof. Rooms are light and spacious in an open-plan design radiating from a generous hall with fine staircase to part-galleried landing. Similar properties have been converted, taking advantage of the spacious roof void to provide further accommodation. There is gas-fired central heating to radiators. No ongoing chain.

Location

The property is very conveniently placed in a pleasant residential setting yet close to the High Street. There is footpath access from Tanyard Lane and a vehicular entrance to the rear via Church Street. The High Street shops, modern health centre, churches, library and schools are all within comfortable walking distance.

Approximate Distances: Steyning is at the foot of the South Downs National Park five miles from the coast and 12 miles from Brighton. Horsham is about 14 miles. A23/M23 access is 8 miles and Gatwick airport can normally be reached by car in about 40 minutes.

Floors/rooms

Ground Floor

Front Door - Timber front door with glazed panels to:

Entrance Hall - Natural timber staircase with oak banister and shaped spindles to part-galleried landing above. Exposed polished floorboards. Double radiator. Central heating thermostat. Natural timber waxed internal doors.

Cloakroom - White suite of WC and washbasin.

Sitting Room - 16'8" x 9'8" (5.08m x 2.94m) with attractive steel fireplace with open grate and slate hearth. Double-glazed picture window with side vents overlooking the rear garden. Recessed bookshelves. Double radiator. Further range of recessed bookshelves and storage alcoves. Open to

Family Room - 17'3" x 9'9" increasing into bay 11'1" (5.26m x 2.97m < 3.39m) with double-glazed window. Two double radiators.

Kitchen/Breakfast Room - Kitchen/Breakfast Room with Conservatory off:
Kitchen Area: 15'4" x 6' (4.68m x 1.81m) Double aspect. Modern, marble-effect Formica work surfaces with timber-faced cupboards and drawers and space and plumbing for washing machine and dishwasher. Inset ceramic sink with swan-neck chrome mixer tap. Space for range cooker with stainless steel upstand and filter hood over. Double radiator. Squared opening to:
Breakfast Area: 11' x 6'9" (3.33m x 2.06m) Recessed fitted household cupboard with fitted retractable shelving. Radiator. Open to conservatory.

Conservatory - 9'1" x 6'7" (2.78m x 2.02m) Exposed brick wall and PVCu double-glazed windows with pitched roof and double French doors opening to the terrace and overlooking the rear garden. Fitted cupboard and shoe-rack.

First Floor

Landing - Galleried with oak balustrade and spindles. Loft access. Original picture rail and window with pine sill. Pitch pine doors off to first floor accommodation.

Bedroom 1 - 14'3" x 9'11" (4.33m x 3.03m) Triple bespoke wardrobe cupboard with hanging space and storage lockers above and below. Double-glazed window. Radiator. Picture rail.

Bedroom 2 - 11'7" x 9'11" (3.54m x 3.03m) Double-glazed window overlooking the rear garden. Radiator.

Bedroom 3 - 10'10" x 8' (3.31m x 2.44m) Double-glazed window. Picture rail. Double radiator.

Bathroom - Modern white suite of panelled bath with mixer taps and independent shower fittings with glazed shower guard. Contemporary washbasin with mixer taps. Low-level WC. Cupboard housing Viessmann gas-fired boiler providing hot water and central heating. Tiling to wet areas. Chromium ladder-rack radiator/towel rail.

Exterior

Garage - Single garage 17'10" x 8'10" (5.44m x 2.68m) with metal up and over door and personal side door.

Front Garden - Gated access and steps up to front garden contained by fencing. To lawn with flowering shrubs adjoining the house.

Rear Garden - South facing, enclosed by fencing. To lawn with paved pathway and gated rear access. Paved patio alcove adjoining the rear of the house.

Services and Council Tax - Services: All main services are connected.
Council Tax Valuation Band: 'D'

Important Note - 1. Any description or information given should not be relied upon as a statement or representation of fact or that the property or its services are in good condition.
2. Measurements, distances and aspects where quoted are approximate.
3. Any reference to alterations to, or use of any part of the property is not a statement that any necessary planning, building regulations or other consent has been obtained.
4. The Vendor does not make or give, and neither Hamilton Graham nor any person in their employment has any authority to make or give any representation or warranty whatsoever in relation to this property.
5. All statements contained in these particulars as to this property are made without responsibility on the part of Hamilton Graham.
Intending purchasers must satisfy themselves on these matters.

Additional Information

For further information on this property please call 01903 879212 or e-mail enquiries@hamiltongraham.co.uk

EPC Graph

Interested in this property?

01903 879212

enquiries@hamiltongraham.co.uk

Request a viewing

Share this property:

Rightmove ZooplaOnthemarket OmbudsmanTSISafe Agent